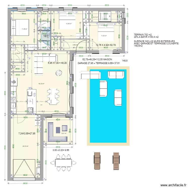
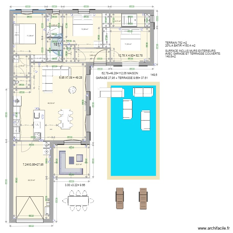
evi muren 31 EIND RESULTAAT minder 150m deur kant zwembad
Floor plan with

Plan details
Room list
No room has been created on this plan.
Link to this plan
Link to share the plan evi muren 31 EIND RESULTAAT minder 150m deur kant zwembad
Plan image
Copy and paste the code below
Share this plan
Do you like this plan?
Click Like and unlock features