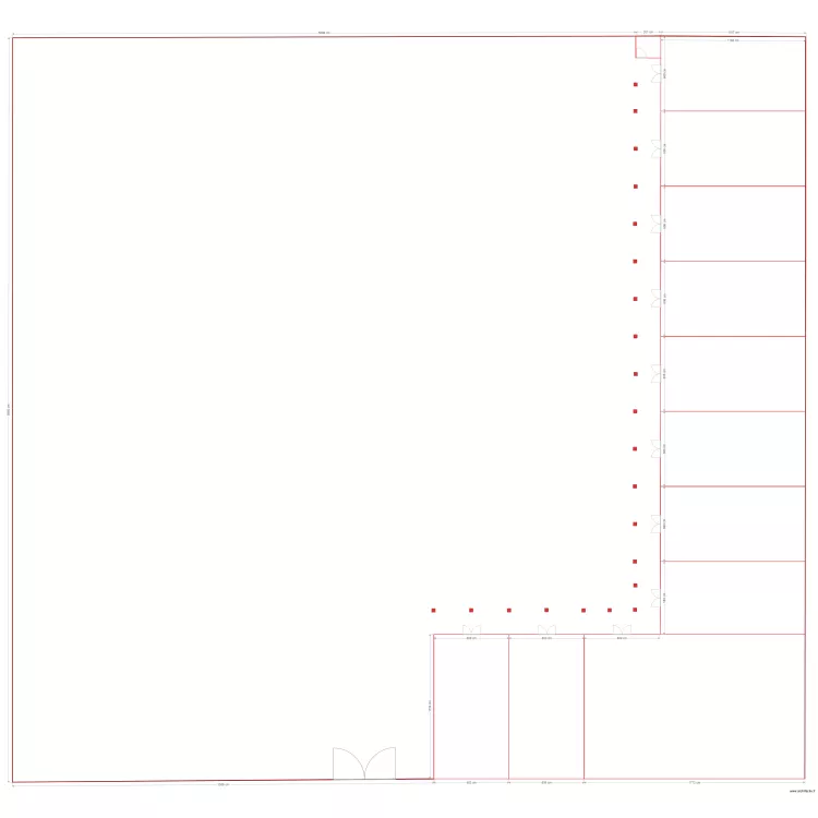
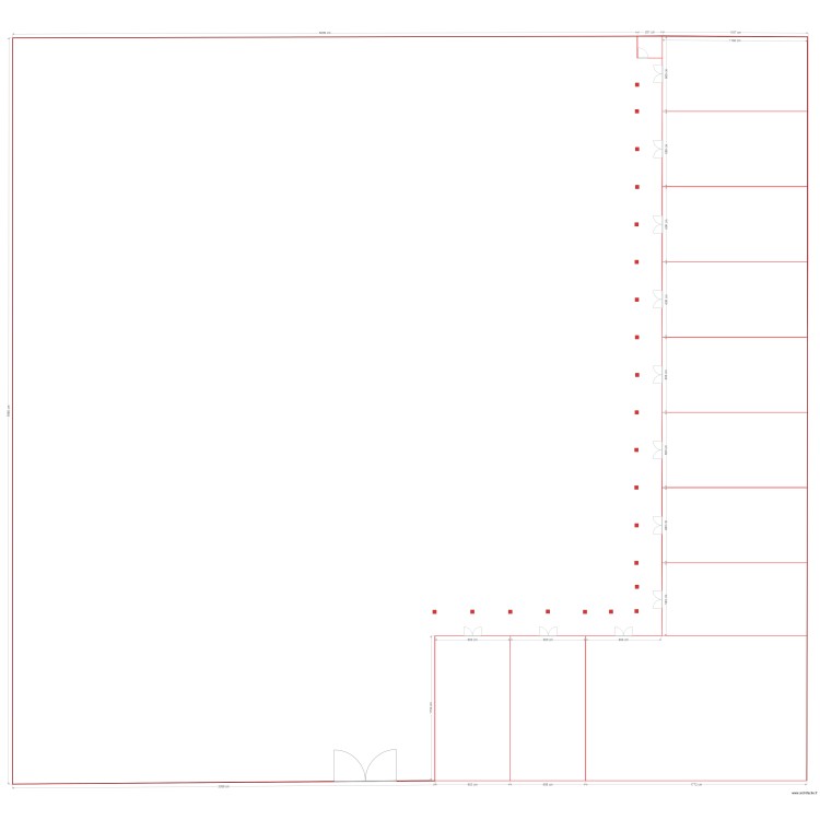
Q10 plan2
Floor plan with

Plan details
Room list
No room has been created on this plan.
Link to this plan
Link to share the plan Q10 plan2
Plan image
Copy and paste the code below
Share this plan
Do you like this plan?
Click Like and unlock features

No room has been created on this plan.
Link to share the plan Q10 plan2
Copy and paste the code below
Click Like and unlock features