casa veci
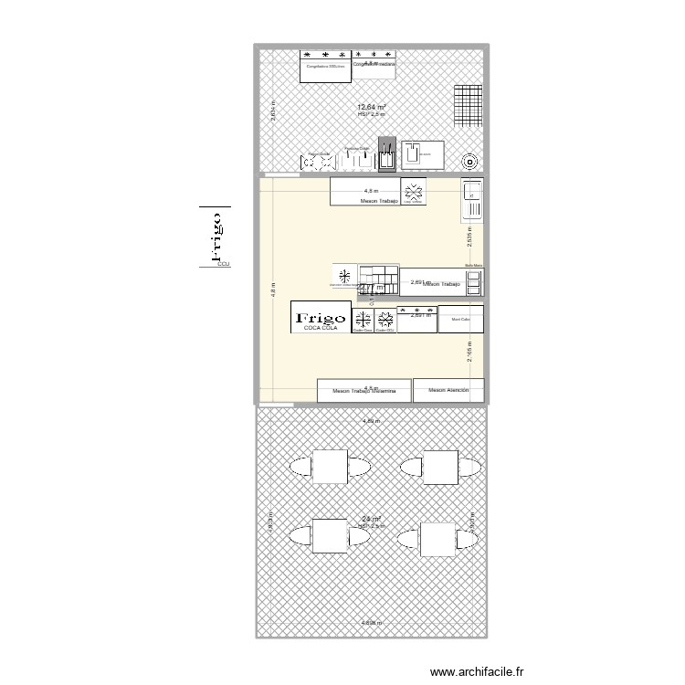
Plano de 0 habitación y 0 m2.

Detalles del plano
- Plano iniciado el 13/08/2022 à 01:56 por Leonardo Jerez
- Modificado el 04/09/2025 à 02:42 por Leonardo Jerez
- Compartir: Uso
Palabras clave
Lista de habitaciones
No se ha creado ninguna habitación en este plano.
Lista de objetos
| Nombre del objeto | Cantidad |
|---|---|
| Baño Maria | 1 |
| Bar | 5 |
| Congélateur coffre 200 L | 3 |
| Évier 1 bac avec meuble | 1 |
| Fogon Doble | 1 |
| Freidora Do | 1 |
| Freidora Industrial | 1 |
| Freidora Simple | 1 |
| Gas | 1 |
| Parrilla | 1 |
| Réfrigérateur | 2 |
| Refrigerateur americain | 1 |
| Refrigerateur congelateur | 3 |
| salsera | 1 |
| Table 2 pers. 74 x 74 cm | 4 |
Enlace a este plano
Enlace para compartir el plano casa veci
Imagen del plano
Copie y pegue el código a continuación
Comparta este plano
¿Le gusta este plano?
Haga clic en Me gusta y desbloquee funciones