3 Ring Terrace Ad

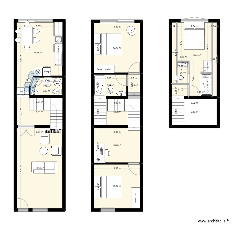
Plan de 16 pièces et 112 m2.

3 Ring Terrace Ad. Plan de 16 pièces et 112 m2

 

Description

This is my 'grand design' idea w/ variations for Virg's preferences and a variation on the top flight of stairs. At around 101m2 it's in the gov design rules range of a 3BED - 6P house. However, it has slightly less m2 for bedrooms than my "minimum viable product" (b/c passageway) and loses about 18m2 more to the design feature 'courtyard' hallway, corridors and staircase than the other design. Notably, it has more generous storage/ utility space and 2 bathrooms over the Ab design

Détails du plan

  • Plan commencé le 20/12/25 par Viiirg
  • Modifié le 20/12/25 par Viiirg
  • Partage : Utilisation

Mots clés

A construire A louer A rénover A vendre Appartement Atelier Bureau Chez moi Coupe Duplex Electricité Extension Facade Ferme Garage Jardin Loft Magasin Maison Piscine
  • Liste des pièces

  • Lien vers ce plan

    Lien pour partager le plan 3 Ring Terrace Ad


    Image du plan

    Copier et coller le code ci dessous


    Partagez ce plan


    Vous aimez ce plan ?

    Cliquez sur J'aime et gagnez des fonctionnalités



    Plans de 100 à 120 m2

    Joseph Mbolem

    par MASTERJ

    Détails

    Joseph Mbolem

    Maison Oh boudiou ! v3

    par oanhsimon

    Détails

    Maison  Oh boudiou ! v3

    first Samy's Farm

    par aminebennani

    Détails

    first Samy's Farm

    cuisine ISA

    par laamouch

    Détails

    cuisine ISA

    A2121

    par Nasir1369

    Détails

    A2121

    Maison Oh boudiou !

    par oanhsimon

    Détails

    Maison  Oh boudiou !

    CasaNova2

    par Pendletown

    Détails

    CasaNova2

    Menjador2

    par victornrn

    Détails

    Menjador2

    Voir tout les plans de 100 à 120 m2